VILLA KEDUM
Kedum, Linköpings kommun
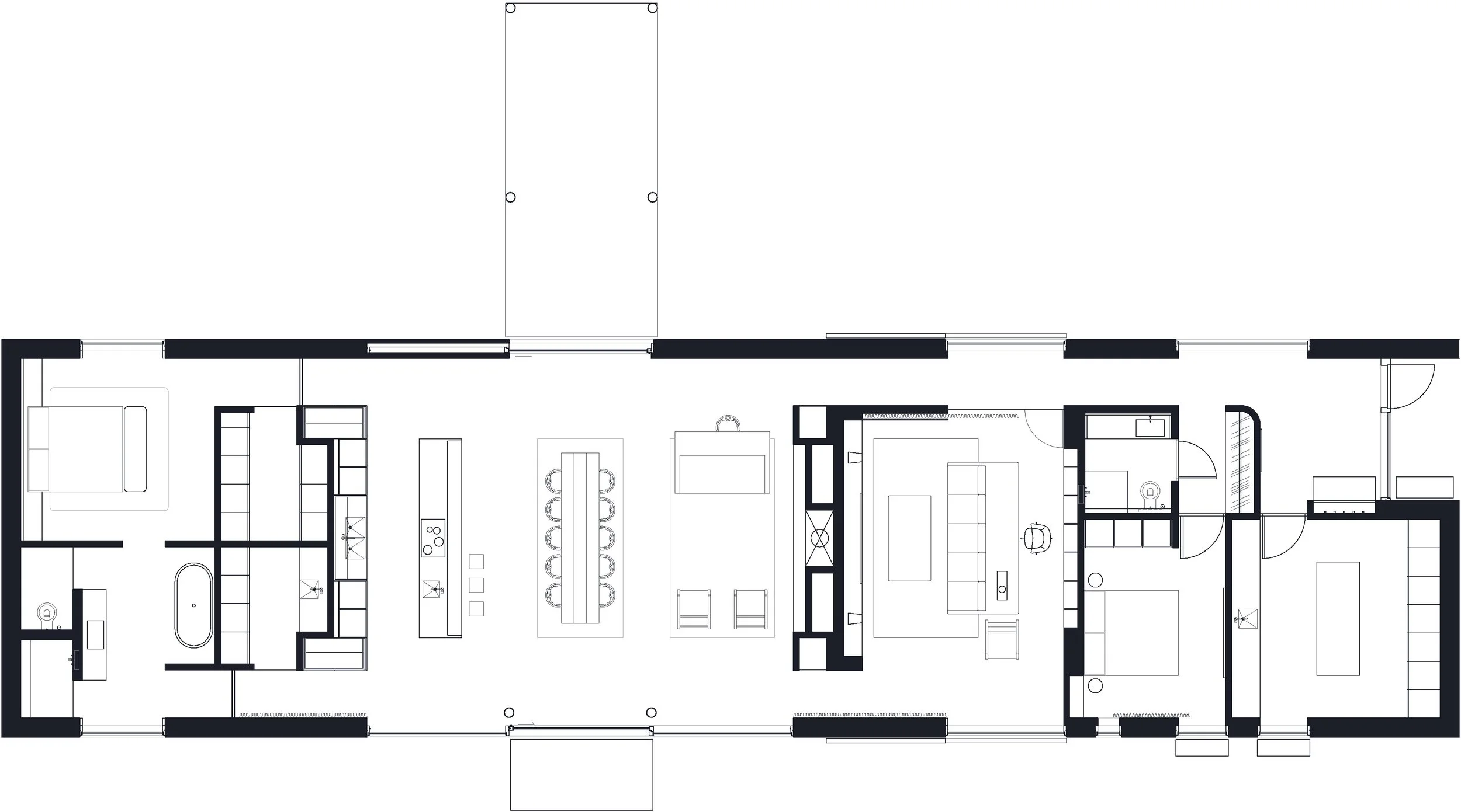
Vi befinner oss i en lantbruksbygd i Västergötland invid Vänerns strand. Många gårdar här är omgärdade av kolonnader av ståtliga trädstammar och långa horisontala stenmurar till skydd och gräns från åkrar och skogar. Dovhjorten vandrar fritt och vilt och gården vill skydda sig från vinden och det öppna landskapet. De vertikala trädstammarna är på sätt och vis en arkeologisk lämning och har funnits som skydd och rumsbildning i hundra år. Platsen känns lika stolt och tydlig som ett besök på Akropolis. En vacker och harmonisk plats.
Uppdraget var att skapa ett hem på en plats där ett föräldrahem funnits. Ett litet lantligt boningshus med ett idag förfallet lantbruk. Åkrar och skogar vårdas men finns i ett större sammanhang som så även på andra platser i Sverige. En nutidsmänniska vill knyta an till platsen, vördnadsfullt, där byggnaden förhåller sig till åker, skog, sjö och minnen från det förflutna.Vi talade tidigt om att vara diskret och osynlig. Smälta in i landskap och byggnadskultur. Att skapa kvalitet utan att sticka ut. En stor volym, magasin eller lada. Placerad i ett kryss som ett tempel i Akropolis samspelar med trädstammarnas kolonnad. Utblickar mot åker, inland, mot Vänerns strand och vidsträckta vattenspegel. Att finna en skala mellan det intima inre och det stora landskapet.
Vi inspirerades av John Pawson Ladhus i Fröslov, Donald Judd, Richard Serras minimala massivitet och Carl Larsson gården. Resultatet blev en rödmålad, sofistikerad lada med klassiska proportioner, gyllenesnitt, med god detaljering. Platsens material är det vajande vetet, den brukade jorden, träden, skogen, vattnet och köksträdgården. Huset ville vara ursprungligt, enkelt, livfullt och modernt.







